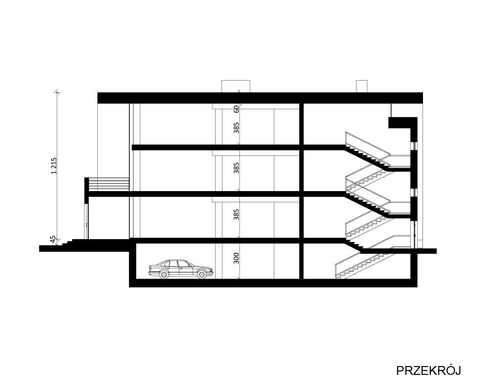
Projekt trzypiętrowego - najmniejszego budynku usługowego serii BS. Zaprojektowany w sposób, który w zależności od potrzeb klienta daje możliwość dopasowania funkcji: hotelowej, biurowej, restauracyjnej czy handlowej. Wewnątrz przestrzeń, którą można podzielić na wiele sposobów, w zależności od wybranej funkcji. W serii BS dostępne różne wielkości budynków, jego prosta i nowoczesna bryła doskonale sprawdza się w każdym otoczeniu. Opcja garażu w kondygnacji podziemnej.
Projekt do indywidualnego zamówienia i ustaleń.
autor: Grzegorz Olesch PLUG STUDIO
