PS-SA-180-20V2 NOWOCZESNY BUDYNEK USŁUGOWY, SKLEP, MAGAZYN, WARSZTAT

Budynek w zabudowie wolnostojącej o zwartej bryle, 2-kondygnacyjny, niepodpiwniczony.
Parter.
Na parterze budynku może znajdować się warsztat samochodowy wraz z pomieszczeniami: biurowym, socjalnym, sanitarnym i magazynowym.
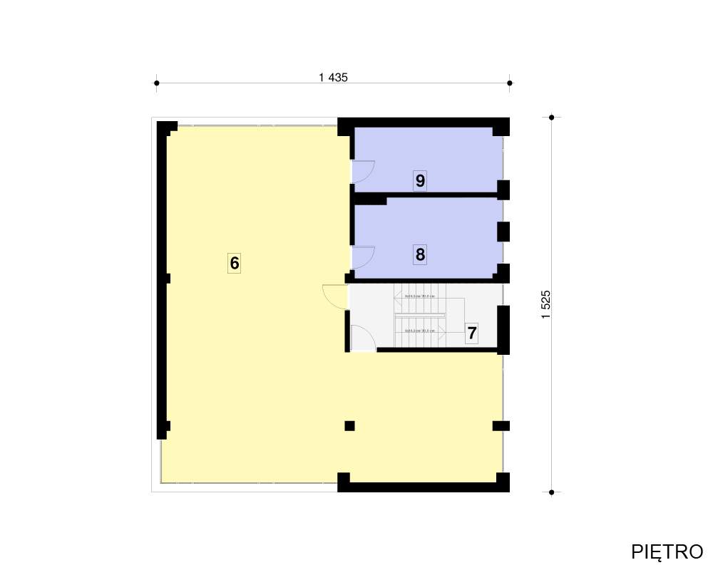
I Piętro.
Na piętrze zaprojektowano otwartą przestrzeń oraz pomieszczenie sanitarne.

Uwaga:
Projekt wymaga indywidualnych ustaleń przeznaczenia obiektu oraz wysokości pomieszczeń.
W cenie proponujemy wykonanie proj. charakterystyki energetycznej i analizy porównawczej pod warunkiem przesłania koniecznych danych projektowych z PZT przy adaptacji.
Czas realizacji ok 7-14 dni od ustalenia dyspozycji z klientem.

Możesz negocjować cenę.
autor: Grzegorz Olesch PLUG STUDIO

Wizualizacje: 
Rzuty: