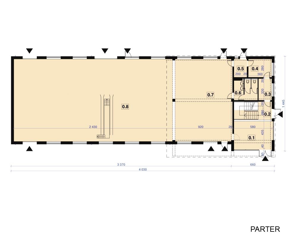
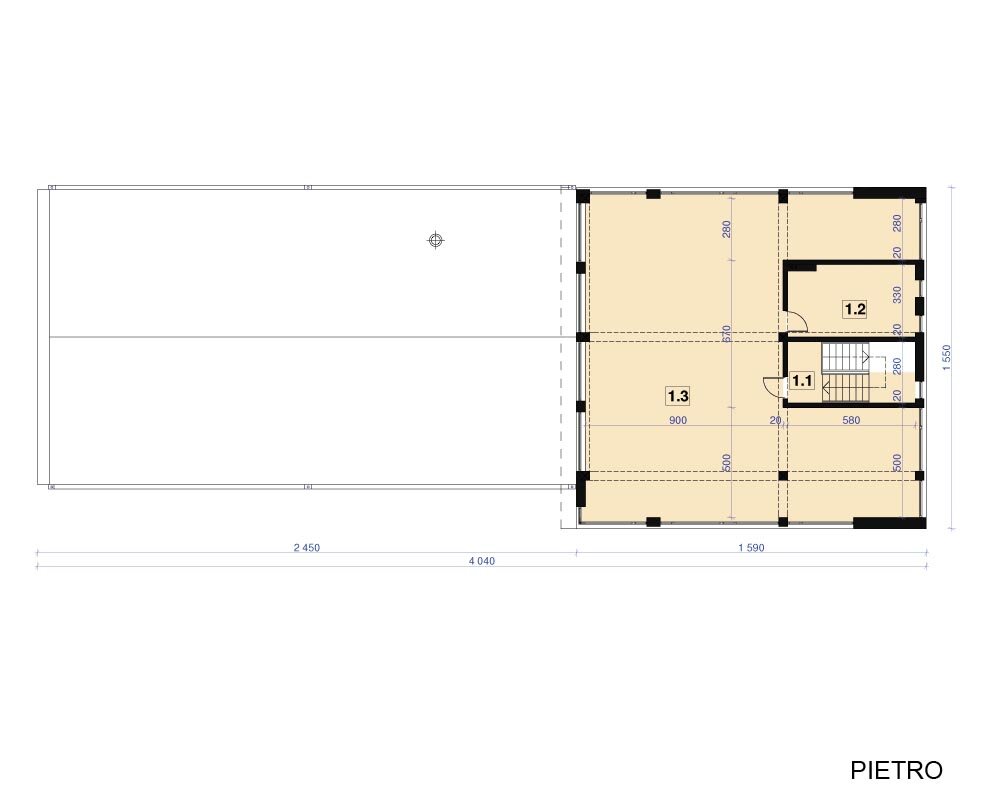
Budynek w zabudowie wolnostojącej o zwartej bryle, 2-kondygnacyjny w części frontowej z bramami wjazdowymi do warsztatu oraz wejściem do części biurowo-sklepowej, niepodpiwniczony, realizowany w technologii mieszanej słupowo -ścianowo- płytowej, konstrukcja dachu hali - stalowa.
Uwaga:
Projekt wymaga indywidualnych ustaleń przeznaczenia obiektu oraz wysokości pomieszczeń.
W cenie proponujemy wykonanie proj. charakterystyki energetycznej i analizy porównawczej pod warunkiem przesłania koniecznych danych projektowych z PZT przy adaptacji.
