PS-SS-V4-L3 projekt serwisu samochodowego

Budynek w zabudowie wolnostojącej o zwartej bryle, 2-kondygnacyjny w części frontowej z bramami wjazdowymi do warsztatu oraz wejściem do części biurowo-sklepowej, niepodpiwniczony, realizowany w technologii mieszanej słupowo -ścianowo- płytowej.
Parter.
Na parterze budynku znajduje się warsztat samochodowy wraz z pomieszczeniami: biurowym, socjalnym, sanitarnym i magazynowym.
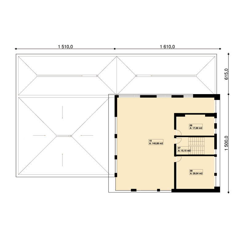
I Piętro.
Na piętrze zaprojektowano otwartą przestrzeń oraz pomieszczenie sanitarne.

Uwaga:
Projekt wymaga indywidualnych ustaleń przeznaczenia obiektu oraz wysokości pomieszczeń.
W cenie proponujemy wykonanie proj. charakterystyki energetycznej i analizy porównawczej pod warunkiem przesłania koniecznych danych projektowych z PZT przy adaptacji.
Czas realizacji ok 7 dni od ustalenia dyspozycji z klientem.

Możesz negocjować cenę.

Wizualizacje: 
Rzuty: