PS-MN-30-20-V2- ECO NOWOCZESNY DOM, PŁASKI DACH

Jeden z projektów bazowych dla serii bliźniaków MN-2x30-20. Niewielki budynek o dwóch kondygnacjach, przeznaczony dla rodziny 2+1, 2+2. Cechuje go prosta i nowoczesna bryła oraz funkcjonalne wnętrze.
autor: Grzegorz Olesch, Plug Studio

Wizualizacje: 
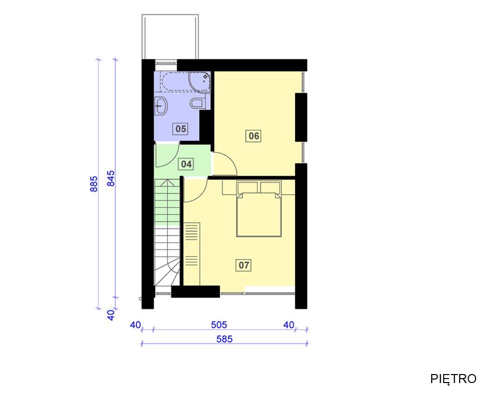
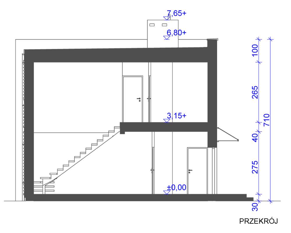
Rzuty: