Projekt typowy domu jednorodzinnego.
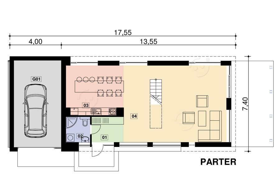
Dom dwukondygnacyjny z garażem oraz pomieszczeniem gospodarczym, w zabudowie wolnostojącej, przeznaczony dla 4-5 osobowej rodziny. Część ogólnodostępna obejmuje pokój dzienny oraz przestrzenną kuchnię połączoną z jadalnią W części prywatnej na piętrze znajdują się 3 sypialnie oraz dwie łazienki ogólnodostępne. W strefie wejściowej znajduje się obszerny przedsionek oraz WC oraz gabinet z niezależnym wejściem, dostępny również z salonu.
ściany murowane gr 20cm docieplenie 25/30 cm, stropy typu teriva.
Możliwe są modyfikacje projektu na indywidualnych zasadach.
Dostępna także wersja energooszczędna za dopłatą.
