PS-GS-200-20-G2-V6 nowoczesny dom dach płaski eco nf 40

Projekt domu jednorodzinnego w standardzie energooszczędnym.
Dostępny od 20 czerwca 2014

autor: Grzegorz Olesch

Wizualizacje: 
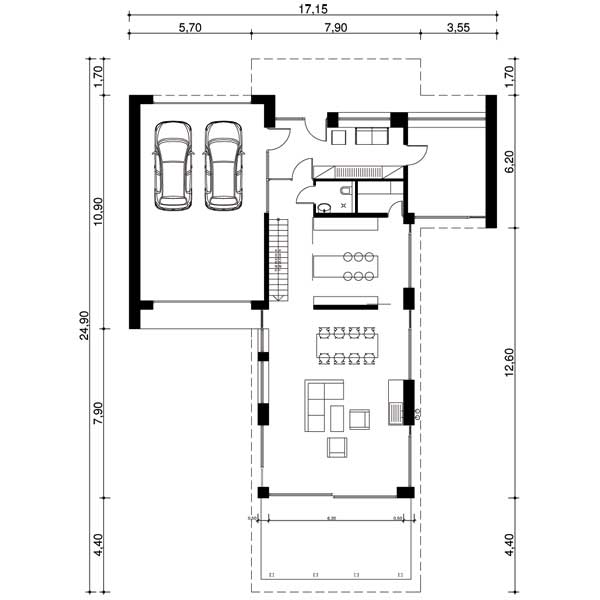
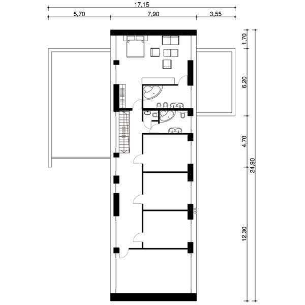
Rzuty: