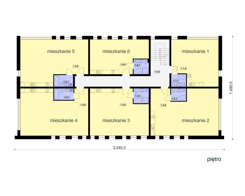
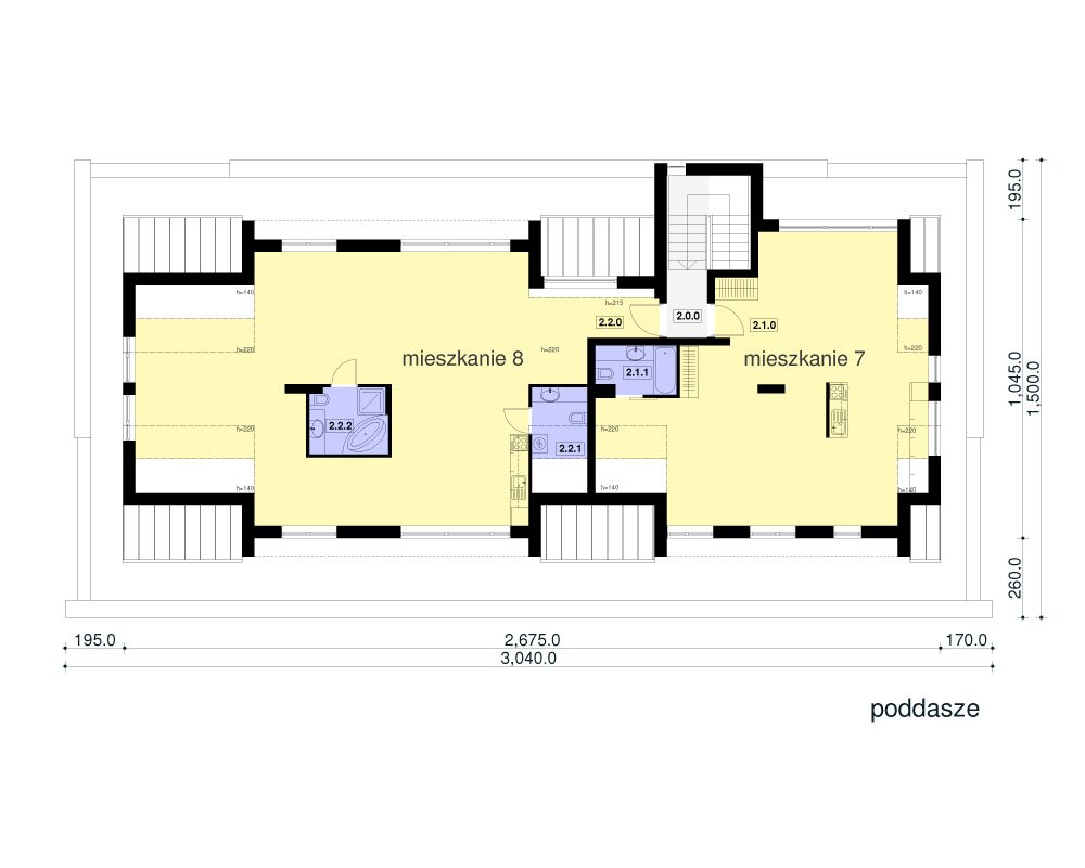
Projekt nowoczesnego budynku wielorodzinnego. Na parterze zaprojektowano część usługową, natomiast na piętrze i poddaszu - mieszkania. Mieszkania na piętrze mają od 40 do 60m2 i są zaprojektowane w sposób pozwalający na ich dowolny podział. Natomaist na poddaszu przewidziane są dwa większe mieszkania po 77m2 i 110 m2.
Zainteresowanych prosimy o kontakt telefoniczny.
autor: Grzegorz Olesch
